The Library is currently closed.  We're open again on Sunday (January 18, 2026) from 1:00 pm to 4:45 pm

Renovations 2025

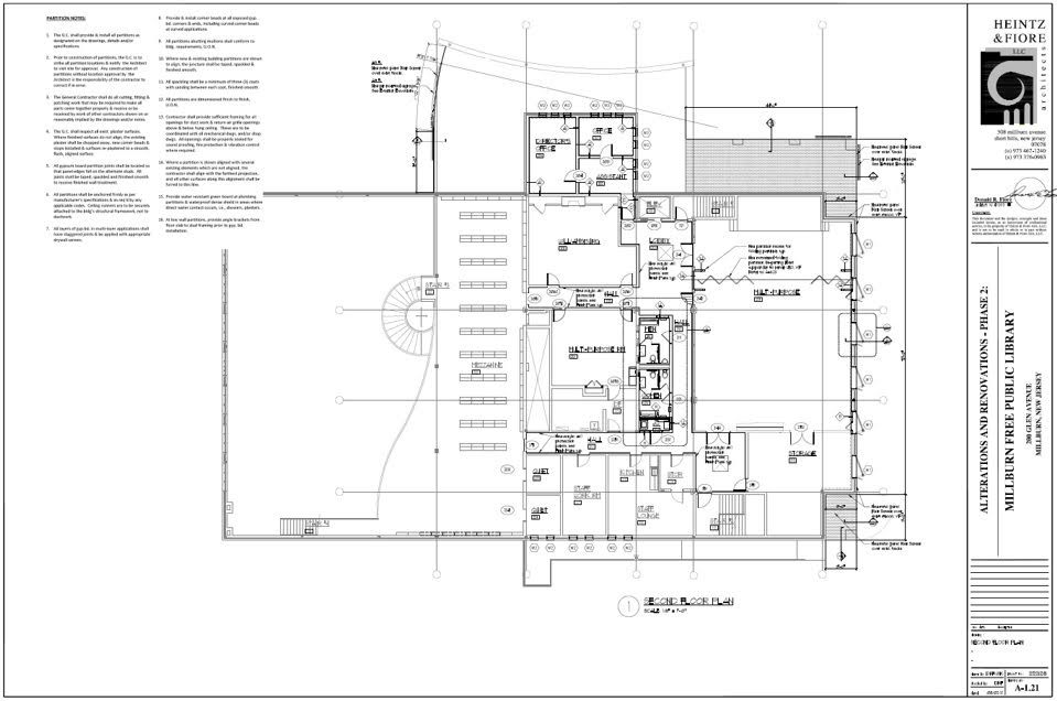
PHASE 2

Building Renovation of Millburn Library

Exterior rendering plans of Millburn LibraryThe Board of Trustees of the Millburn Free Public Library is excited to announce the upcoming Phase 2 of its building renovation project. This phase will focus on the modernization of the second-floor program rooms, community meeting spaces, hallways and restrooms. Renovations are anticipated to commence in early 2025.

Following the successful completion of Phase 1 in 2022, which revitalized the first floor and mezzanine areas—enhancing the children’s room and teen space—the library is now set to turn its attention to the upper level. The planned improvements aim to create a more accessible, functional and welcoming environment for all patrons.

“Modernizing our second floor will not only enhance our facilities but also better serve the diverse needs of our community,” said Director Mike Banick. “We are committed to providing a space that fosters learning, collaboration and connection among our library users.”

Key highlights of the renovation include:

  • Enhanced Auditorium with New Windows: Installation of windows along the second-floor auditorium will flood the space with natural light. New blackout shades, flexible seating arrangements with new chairs and tables and upgraded technology will accommodate a variety of events and activities.
  • Revitalized Community Meeting Spaces: More inviting environments designed to encourage community engagement and collaboration. Upgraded technology and audio-visual equipment will improve presentations, meetings and connectivity.
  • Modernized Restrooms: Restrooms will be completely refreshed and reconfigured, featuring all new fixtures designed with sustainability in mind.
  • Upgraded Flooring, Ceilings and Lighting: The entire second floor will showcase all-new flooring, ceilings and energy-efficient lighting.
  • Focus on Sustainability: The renovation emphasizes efficiency, all new fixtures will adhere to stringent environmental standards.

The library will stay open throughout the renovation. While the second floor will be closed, the mezzanine—home to the non-fiction stacks and a quiet study area—will be accessible to patrons. The library staff is committed to minimizing disruptions, however brief closures may be necessary for safety reasons. Programming will continue during the renovation, utilizing virtual options or relocating events to the first floor or off-site as necessary.

The projected completion date is late summer 2025. Community members can expect a  refreshed and inviting space that enhances their library experience. Further updates about the renovation process will be available on the library’s website at millburnlibrary.org and through social media channels.

Renovation Update – 8/27/2025

Much progress has been made, including lighting, framing, electrical, ceiling grids, windows, and much more.  As interior work shifts now to fine details and finishes, a separate crew will begin working on the exterior of the building, including new flashing, cladding, and signage.  We expect flooring to be installed at the end of September and to have new technology and AV equipment in place shortly after that.  We hope to occupy the renovated spaces in early to mid October.  

 

Renovation Update – 6/5/2025

Elevator modernization and replacement continue and will be wrapping up shortly, perhaps within a week or two.  However, the new elevator will remain closed until the second floor renovations are finished, as the elevator will lead directly to the construction zone which remains closed to the public.  

Second floor renovation work continues.  Lighting, flooring, and plumbing fixtures are on order and will be installed upon arrival.  Bay windows will be fabricated on site and installed on-by-one.  Sheetrock and spackling work is underway, and Acrovyn wall coverings will be installed once this work is finished.  

 

Renovation Update – 5/12/2025

Progress continues on both the interior and exterior of the building.  New interior doors have been framed and interior walls are being prepped for the durable Acrovyn wall covering that will be installed.  This wall treatment will transform the interior walls from a hard masonry block surface to a smoother, finished look, which will give the library a fresher, less institutional appearance.  Most of the grid for the new ceiling has been installed.  Lighting and ceiling tiles will be put in place closer to the end of the project so that they are not damaged by other work still in progress.  The openings for six new bay windows have been cut into the library’s south façade.  These windows will allow natural light to pour into the second-floor auditorium, but they will be equipped with blackout shades for when the library shows movies or hosts other programs that are better suited for a darkened room.  On the exterior, the stucco ceiling of the outside soffit has been removed and will be replaced with an exterior-rated gypsum board.  Cladding, flashing, and roofing work will complete the exterior improvements.

At the same time, the elevator modernization has been progressing nicely.  All of the original components, including 50-year-old relays and switches, have been replaced with solid state equipment, and the car has been replaced.  The new elevator will have modern safety features including cellular communication and a blackout response mode that automatically lowers the car to the first floor and opens the doors in the event of a power outage.

Construction fencing is in place to control debris and keep the area safe.  Library visitors should park in the library parking lot and walk to the front entrance (by the flagpole) to access the building.  The book return bin in the library parking lot remains open 24-7 for convenient drive-up returns.

Renovation Update – 3/25/2025

Bids were opened on February 6, 2025 and on February 13, the Board of Trustees awarded the renovation contract to AB Designs Contraction Corporation of Summit, New Jersey.

Right now, the second floor meeting rooms, hallways, administration offices and restrooms are closed to the public.  Admin offices have temporarily moved to two quiet study rooms on the library mezzanine. 

Demolition work began on March 5.  Ceilings, lighting, and all restroom fixtures have been removed, and some new doorways have been roughed out.  The general layout of the second floor will be the same, but everything will be refreshed and updated to complement the renovated first floor, with new ceilings, LED lighting, wall finishes, and flooring.  Original concrete block walls wall also be furred out and covered with drywall for a sleeker, more finished look.  Finally, new bay windows are being added to the auditorium to allow natural light into this large meeting room. 

Note:  The library will be closed all day on Thurs 3/27 and Fri 3/28 due to renovation work.  The first floor and mezzanine will reopen on Saturday 3/29. 

Renovation Schedule

  • January 6th, 2025: Bid packets made available from the Director’s Office between 10:00am – 4:00pm, Monday-Friday, for a non-refundable Plan Fee of $25.00 (corporate check, certified check, cashier’s check or money order, made payable to the Millburn Free Public Library).
  • January 16th: Non-mandatory walk-through for interested bidders.
  • Thursday, February 6th: Bid opening. (Originally Tues 2/4, changed to Thurs 2/6)
  • Mid-February: Contract will be awarded by the Board of Trustees.
  • Mid-August: substantial completion.
  • Late Summer: anticipated completion.

GDPR